HAUPTMERKMALE
PRÄZISE POSITIONIERUNG
Minikrane, die mit einer progressiven Geschwindigkeitsregelung ausgestattet sind, ermöglichen eine präzise und sichere Platzierung von Lasten. Dies ist besonders vorteilhaft, wenn empfindliche oder komplexe Bauteile wie Formen oder Motoren mit äußerster Sorgfalt positioniert werden müssen.
ERGONOMIE
Das Ziel der Ergonomie besteht darin, Arbeitsbedingungen so zu gestalten, dass sie den Bedienkomfort fördern und gleichzeitig die Effizienz steigern. Unsere Mobilkrane bieten optimale ergonomische Lösungen, die dazu beitragen, das Wohlbefinden der Bediener zu verbessern. Durch die Reduzierung körperlicher Belastungen ermöglichen sie eine sichere und produktive Arbeitsweise.
VIELSEITIG UND FLEXIBEL
Mobilkrane sind äußerst flexibel einsetzbar und können problemlos verschiedene Werksbereiche bedienen – ohne dass ein spezieller Führerschein erforderlich ist. Dank ihrer Konstruktion können sie auch in Bereichen mit Hindernissen oder Schutzvorrichtungen eingesetzt werden. Darüber hinaus sind sie mit unterschiedlichen Unterhaken kompatibel, um vielfältigen Anforderungen gerecht zu werden.
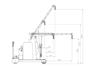
Der FLEX F1000SBR ist ein motorbetriebener Gegengewichtskran, der für das Heben und Bewegen von Lasten bis zu 1 Tonne ausgelegt ist. Mit einer maximalen Ausladung von bis zu 1400 mm bietet er eine optimale Lösung für präzise Arbeiten in engen Räumen, in denen Lasten sicher aufgenommen und positioniert werden müssen.
Der FLEX F1000SBR ermöglicht das Platzieren von Teilen wie Formen, Ersatzteilen und anderen Lasten auf Werkzeugmaschinen, Regalen, Montagebänken oder an schwer zugänglichen Stellen. Zur Serienausstattung gehört ein dynamischer Hubmomentbegrenzer, der Hub- und Vorschubbewegungen bei Überlast blockiert und so maximale Sicherheit gewährleistet. Der Kran erfüllt alle Anforderungen der geltenden Gesundheits- und Sicherheitsvorschriften und gewährleistet eine sichere und effiziente Handhabung von Lasten.
Der FLEX F1000SBR ist mit einer Fernbedienung ausgestattet, die eine präzise Steuerung aller Kranbewegungen ermöglicht. Die einstellbare und proportionale Geschwindigkeitsregelung umfasst die Funktionen Heben, Senken, Ausschieben und Einziehen des Auslegers.















